Casa semindipendente in vendita

Reggio Di Calabria, Via Borrace Crocevia - Reggio Calabria Nord
€ 45.000
Prezzo aggiornato
6 locali 6 locali
157 Mq 157 Mq
5 bagni 5 bagni

Casa semindipendente in vendita

Reggio Di Calabria, Via Borrace Crocevia - Reggio Calabria Nord

Descrizione annuncio

Via Borrace Crocevia, 59

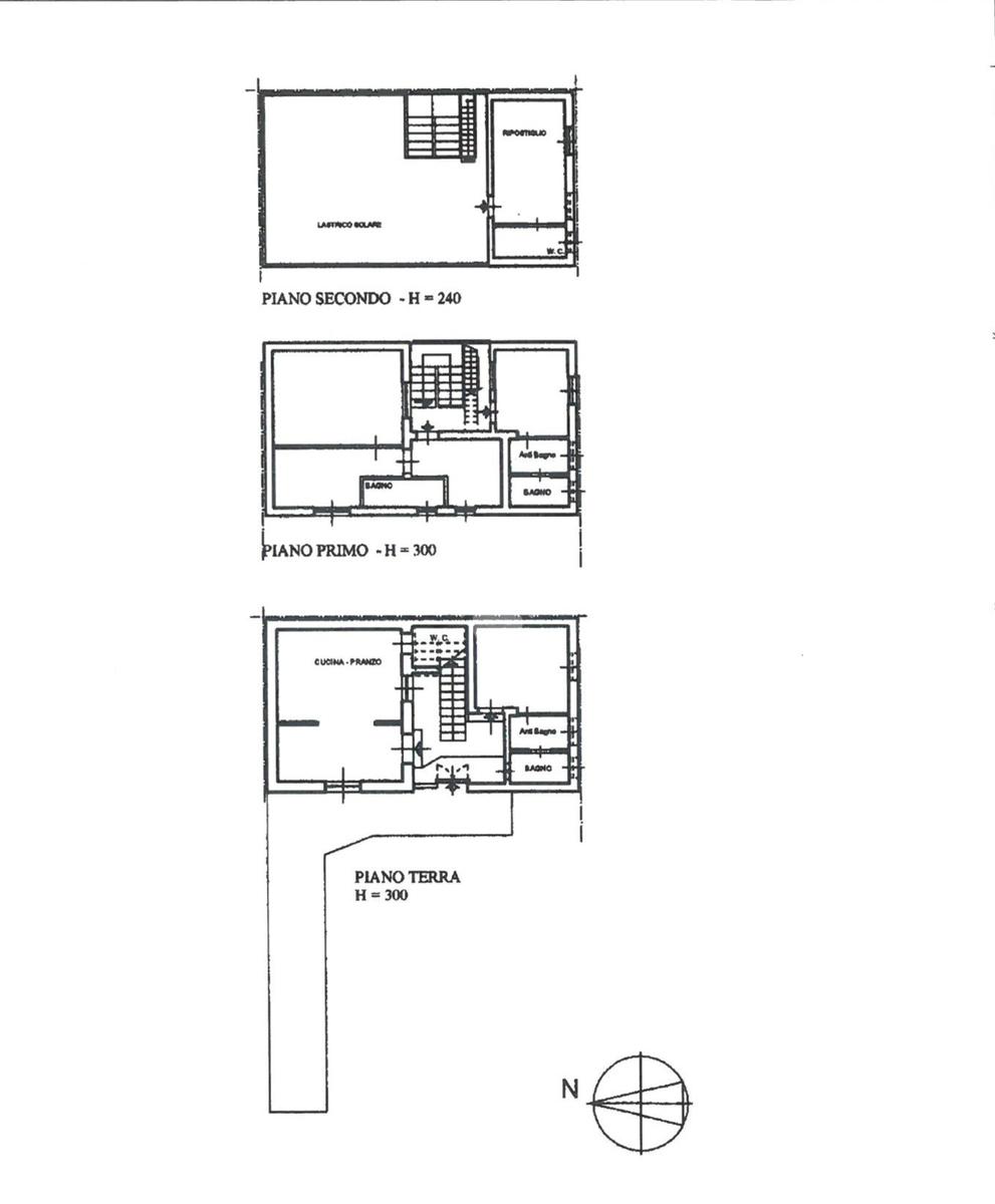
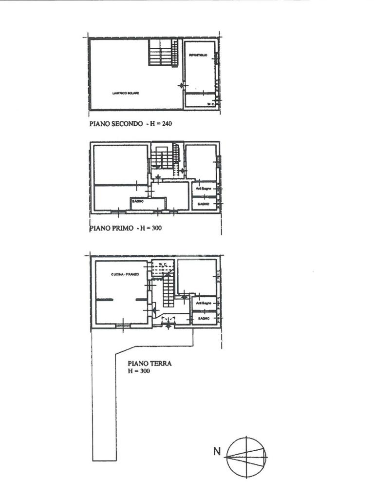
L'agenzia Tecnocasa Studio Reggio Calabria Nord, propone in vendita semindipendente che si sviluppa su tre livelli, di 157 mq.

Il piano terra si apre su un'ampia zona giorno composta da una cucina-soggiono con bagno, una prima camera eventualmente da adibire a studio ed un secondo bagno con anti-bagno.

Al primo piano troviamo, invece, tre comode camere e due bagni, di cui uno in camera.

Al secondo ed ultimo piano è situato uno spazioso lastrico solare con annesso locale tecnico munito di bagno.

Situato in una zona servita, a pochi passi da mezzi di trasporto cittadini, università e principali attività commerciali estremamente comodi. Vicino al centro citta, permette di godere delle comodità della vita metropolitana senza rinunciare alla tranquillità.

Ottimo potenziale di ristrutturazione, perfetto per personalizzare gli spazi secondo il proprio stile ed esigenze.

Mostra tutto

Nelle vicinanze

Trasporto pubblico Trasporto pubblico
Reggio di Calabria Lido
Reggio di Calabria Lido
1,4 Km
Reggio di Calabria Santa Caterina
Reggio di Calabria Santa Caterina
1,6 Km
Via Cardinale Portanova Tabacchino s/n
Via Cardinale Portanova Tabacchino s/n
120 m
Via Cardinale Portanova Tabacchino
Via Cardinale Portanova Tabacchino
120 m
Meridiano Lines
1,4 Km
Ricariche auto elettriche Ricariche auto elettriche
Reggio Quartiere Militare | EnelX
630 m
Reggio Calabria Fata Morgana | EnelX
1,9 Km
Reggio Gelsomino | EnelX
2,1 Km
Reggio Calabria Monumento ai Caduti | EnelX
2,1 Km
Reggio Calabria Terme Romane | EnelX
2,4 Km
Scuole Scuole
Università Mediterranea di Reggio Calabria Facoltà di Ingegneria
510 m
Università Mediterranea di Reggio Calabria Dipartimento di Agraria
580 m
Scuola Primaria Melissari
590 m
Università Mediterranea di Reggio Calabria Facoltà di Architettura
620 m
Scuola primaria Giosuè Carducci
1,0 Km
Farmacia Farmacia
Farmacia San Brunello
950 m
Faramacia Spirito Santo
1,6 Km
Farmacia Scerra Domenica
1,7 Km
Farmacia Fata Morgana
1,9 Km
Farmacia Centrale
2,3 Km
Ospedali Ospedali
Policlinico Madonna della consolazione
340 m
Istituto Ortopedico del Mezzogiorno d'Italia
450 m
Ospedali Riuniti "Bianchi Melacrino Morelli"
640 m
Ospedali
2,7 Km
Ospedale "Morelli"
2,8 Km
Supermercati Supermercati
Spaccio Alimentare
860 m
Qui Conviene
2,8 Km
Negozi Negozi
Clichè
580 m
Milasi
1,2 Km
Negozi
1,3 Km
OVS
2,0 Km
Upim
2,2 Km
Bar Bar
B'art Cafè
2,0 Km
Bar De Stefano
2,4 Km
Caridi
2,6 Km
Les FoliesCafè
2,8 Km
Bar Garibaldi
2,8 Km
Ristoranti Ristoranti
Pizzeria Ciroma
1,2 Km
Pizza Roma
1,4 Km
La luna ribelle
1,4 Km
L'Ancora
1,4 Km
Sushi
1,8 Km
Mostra tutto

Caratteristiche

Rif.:
61143588
Piano:
Su più livelli di 3
Totale piani:
3
Terrazzi:
1
Camere da letto:
4
Arredamento:
Assente
Mostra tutto
Prezzo Prezzo
€ 45.000
Rata mutuo Rata mutuo
€ 214 / mese
Spese annue Spese annue
€ 0
Proponi il tuo prezzoProponi il tuo prezzo

Classe Energetica

F
F
F
F
F
F
F
F
F
EP globale non rinnovabile:
200.00 kW h/m² anno
EP globale rinnovabile:
100.00 kW h/m² anno
EP invernale del fabbricato:
EP estiva del fabbricato:
Anno di costruzione:
1960
Riscaldamento:
Autonomo
Tipo impianto:
A radiatori
Tipo alimentazione:
Metano

Prezzo ridotto di €1 (14%%)

Ti interessa visionare l'immobile?

Fissa un appuntamento  Fissa un appuntamento

Richiedi informazioni

Clicca su Leggi per aprire l'informativa
* Questi campi sono obbligatori

Calcola il tuo mutuo

Semplice e senza impegno
Anticipo

( % )
Mutuo

( % )

pochi semplici passi

inserisci i tuoi dati
Questionario completato
Grazie per aver richiesto un appuntamento senza impegno con un nostro Consulente del Credito e Assicurativo.

Hai inserito correttamente tutti i dati necessari e a breve riceverai una e-mail con un link da convalidare per inviare i tuoi dati.
Affiliato
Studio Reggio Calabria Nord Srl
Via Santa Caterina, 12 D-E 89122 Reggio Di Calabria (RC)

Il nostro staff


  • Domenico Laganà
    Affiliato
Via Santa Caterina, 12 D-E 89122 Reggio Di Calabria (RC)
Zona: Reggio Calabria - Nord
Mostra su mappa
Orari: dal lunedì al venerdì 8:30-13:00/15:00-20:00; sabato 8:30 - 13:00
Affiliato
Studio Reggio Calabria Nord Srl
Via Santa Caterina, 12 D-E 89122 Reggio Di Calabria (RC)

2026 Tecnocasa Franchising S.p.A. - P. IVA 08365160152 - Via Monte Bianco 60/A 20089 Rozzano (MI). Ogni agenzia ha un proprio titolare ed è autonoma. Privacy policy | Policy utilizzo | Cookie policy